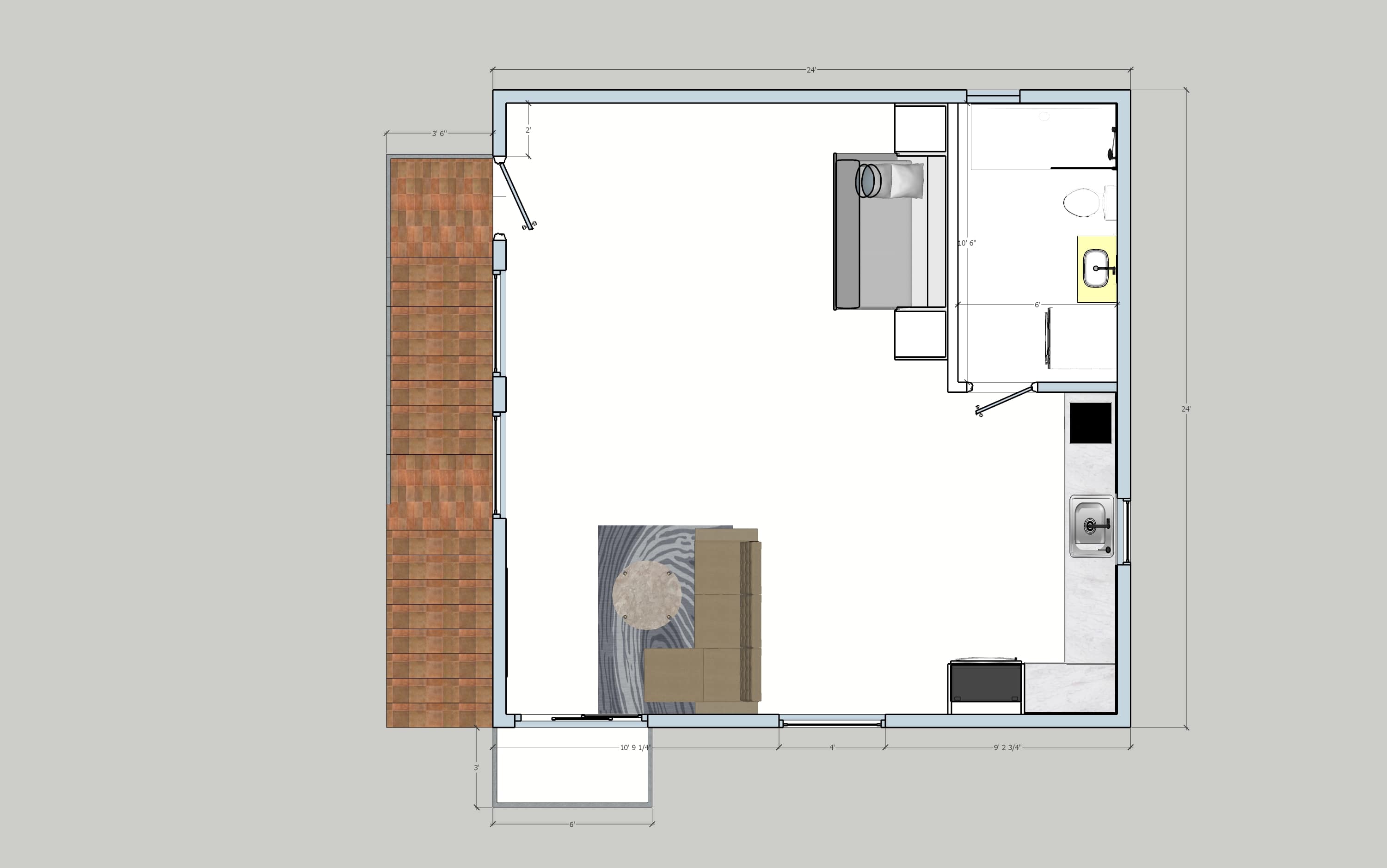
ADU above Garage
This is a new project currently in the permitting phase. We already have all the sketches, design, and structural engineering drawings completed, and we’re preparing to obtain the permit and begin construction in the coming months. The clients recently moved from Chicago to a very expensive neighborhood in Denver. In their backyard, they have a garage and would like to build a 600-square-foot apartment above it. We're assisting them in securing the necessary approvals and permits for this addition. The new space will serve as a guest suite for friends or for short-term rental. It will include a bathroom, kitchen, and a balcony.


